Incentives

For a limited time, new residents can save with 1 month(s) free on a 12-month lease. The gross monthly rent is $49,999, and the net effective rent is $45,832. This incentive is only valid for new residents with immediate move-ins. For Manhattan apartments offering valid incentives, future residents may choose to either receive the specified rent concession or apply the value of that concession toward their broker fee.

Description

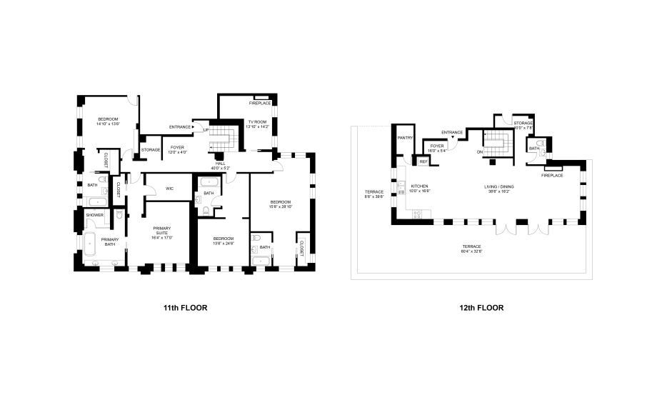
Discover a rarely available four-bedroom, four-and-a-half-bath penthouse on the Upper East Side, offering over 4,300 square feet across two thoughtfully designed floors. This expansive residence pairs generous scale with refined finishes and open city views.

Perched on the 11th and 12th floors, this exquisite home features an expansive 12th-floor wraparound terrace, offering a private outdoor retreat with stunning panoramic vistas. Oversized, loft-style windows flood the interiors with natural light, creating a bright and airy ambiance throughout. Triple exposure, soaring ceilings, and zoned central air conditioning enhance both comfort and elegance, while multiple walk-in closets provide ample storage.

The contemporary chef’s kitchen is thoughtfully designed with sleek custom cabinetry, high-end Wolf and Sub-Zero appliances, and generous counter space. Adjacent to the kitchen, an open-concept living area is warmed by a gas fireplace and complemented by oak plank flooring, seamlessly connecting to the oversized terrace for effortless indoor-outdoor living. Each bedroom is a serene sanctuary, featuring unique finishes such as built-in cabinetry, double-vanity sinks, and deep soaking tubs. A separate laundry room and a versatile home office or maid’s room add to the home’s functionality, as well as custom closet spaces.

Built in 1922 by the esteemed architecture firm Emery Roth & Sons, 151 E 80th St. is a distinguished full-service building with a 24/7 doorman. Perfectly positioned at the corner of Lexington Avenue and 80th Street, this prestigious address is within the highly sought-after PS 6 school district and offers effortless access to Central Park, Museum Mile, and the Upper East Side’s finest dining and shopping. This is a rare opportunity to own an exceptional residence in one of Manhattan’s most coveted neighborhoods.

Contact us to schedule a private tour of this beautiful space. Don’t miss this rare opportunity to experience one of Manhattan’s most coveted penthouses.

Amenities & Features

  • Unit
  • Bathtub
  • Central AC
  • City Windows
  • Decorative Fireplace
  • Dining Room
  • Dishwasher
  • Double Sink Vanity
  • Eat-In Kitchen
  • En-Suite Bathroom
  • Gas Fireplace
  • Hardwood Floors
  • In-Unit Washer Dryer
  • Individual Climate Control
  • Microwave
  • Private Balcony
  • Smart Lock Entry
  • Stainless Steel Appliances
  • Standing Shower
  • Walk-In Closet
  • Building
  • Bike Storage (Additional Fee Applies)
  • Doorman
  • Elevator
  • Laundry Room
  • Package Storage
  • Smoke-Free Building

Building

Experience the elegance of Manhattan's Upper East Side at 151 East 80th Street. Enjoy all the luxuries of a full-service property, including a 24-hour doorman, fully-equipped laundry facilities, and meticulously renovated apartments. Built in 1922 by the noted architecture firm of Emery Roth & Sons, this boutique residence exhibits arched marble ceilings, intricate lobby tilework, casement windows, and unique pre-war details. Sitting on Lexington Avenue and 80th Street, the Upper East Side is at your doorstep with Central Park, Museum Mile, and some of the city's finest dining and shopping destinations. Sun-lit apartments offer a variety of floorplan layouts and are equipped with top-of-the-line appliances, designer finishes, large casement windows, and ample storage space.

View Building →

Neighborhood

Enter one of New York City's most iconic neighborhoods, the Upper East Side, where world-class cultural institutions sit alongside some of the biggest names in luxury retail. Bounded by Central Park and the East River, this neighborhood offers easy subway and bus access and a range of housing options, ranging from large pre-war rental buildings to chic townhomes that line tree-lined streets. From the collection of Museum Mile cultural institutions to the popular riverside Carl Schurz Park, there is always a new place to explore right outside your door.

  • Entertainment
  • Guggenheim Museum
  • New York Public Library
  • The Met
  • Parks
  • Central Park
  • Restaurants and Bars
  • Ladurée
  • Daniel
  • Shopping
  • Whole Foods
  • Transportation
  • 4 Train
  • 5 Train
  • 6 Train